Espace propriétaire
fr

Votre recherche

Dunkerque (59240)

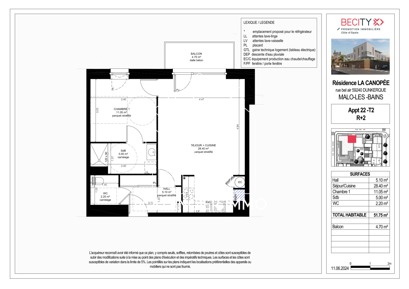
2 pièces - 51,75 m²

PROGRAMME NEUF - LA CANOPÉE - DUNKERQUE

230 000 €
Ref : lacanopee_lot12
A propos de ce bien

LES TRAVAUX ONT COMMENCE ! LIVRAISON T3 2026. DERNIERS LOTS DISPONIBLES !


BOLLENGIER IMMOBILIER vous propose en AVANT-PREMIERE cette nouvelle Résidence neuve.

Nichée au cœur du quartier de MALO-LES-BAINS, à deux pas de la plage, de la place du marché et des espaces verts, La Canopée est une résidence neuve, qui offre un cadre de vie exceptionnel, combinant confort, modernité et convivialité. La proximité des commodités quotidiennes assure aux résidents un confort de vie optimal.

Accueillant et sécurisé, la bâtiment profite d’une exposition plein Ouest, avec de grandes baies vitrées qui inondent les espaces de vie de lumière naturelle, rendant les lieux lumineux et agréables.


- 14 appartements de T2 au T4

- 3 étages

- 1 local vélo

- Parkings et garages


Plus de renseignements auprès de Audrey Vandenkerckhove : 06 82 08 40 75

Descriptif de ce bien
Général
Code postal 59240
Surface habitable (m²) 51,75 m²
Surface loi Carrez (m²) 51,75 m²
Nombre de chambre(s) 1
Nombre de pièces 2
Etage 2
Nombre de niveaux 3
Ascenseur OUI
Détails
Nb de salle de bains 1
Cuisine Américaine
Mode de chauffage Electrique
Type de chauffage Radiateur
Format de chauffage Individuel
Interphone OUI
Visiophone OUI
Terrasse OUI
Cave NON
Exposition Ouest
Année de construction 2026
Composition
Rez de chaussée
Séjour / Cuisine 28.40 m²

Parquet Stratifié - Volets roulants avec motorisation et commande par interrupteur

chambre 11.05 m²

Parquet Stratifié - Volets roulants avec motorisation et commande par interrupteur

Hall 5.10 m²

Parquet Stratifié

salle de bain 5 m²

Carrelage en grès cérame - Volets roulants avec motorisation et commande par interrupteur

WC 2.20 m²

Carrelage en grès cérame

balcon 4.7 m²

Dalle béton - Garde corps métalliques

Financier
Prix de vente honoraires TTC inclus 230 000 €
Energie
DPE GES
Contacter pour ce bien
L'agence
Téléphone 03 28 42 06 06
Adresse
1 rue de Lille 59270 Bailleul

* Champ obligatoire

Les informations recueillies sur ce formulaire sont enregistrées dans un fichier informatisé par La Boite Immo agissant comme Sous-traitant du traitement pour la gestion de la clientèle/prospects de l'Agence / du Réseau qui reste Responsable du Traitement de vos Données personnelles.
La base légale du traitement repose sur l’intérêt légitime de l'Agence / du Réseau.
Elles sont conservées jusqu'à demande de suppression et sont destinées à l'Agence / au Réseau.
Conformément à la loi « informatique et libertés », vous pouvez exercer votre droit d'accès aux données vous concernant et les faire rectifier en contactant l'Agence / le Réseau.
Si vous estimez, après avoir contacté l'Agence / le Réseau, que vos droits « Informatique et Libertés » ne sont pas respectés, vous pouvez adresser une réclamation à la CNIL.
Nous vous informons de l’existence de la liste d'opposition au démarchage téléphonique « Bloctel », sur laquelle vous pouvez vous inscrire ici : https://www.bloctel.gouv.fr 
Dans le cadre de la protection des Données personnelles, nous vous invitons à ne pas inscrire de Données sensibles dans le champ de saisie libre
Ce site est protégé par reCAPTCHA, les Politiques de Confidentialité et les Conditions d'Utilisation de Google s'appliquent.

Découvrir nos outils